EN |  PT

APRESENTAÇÃO

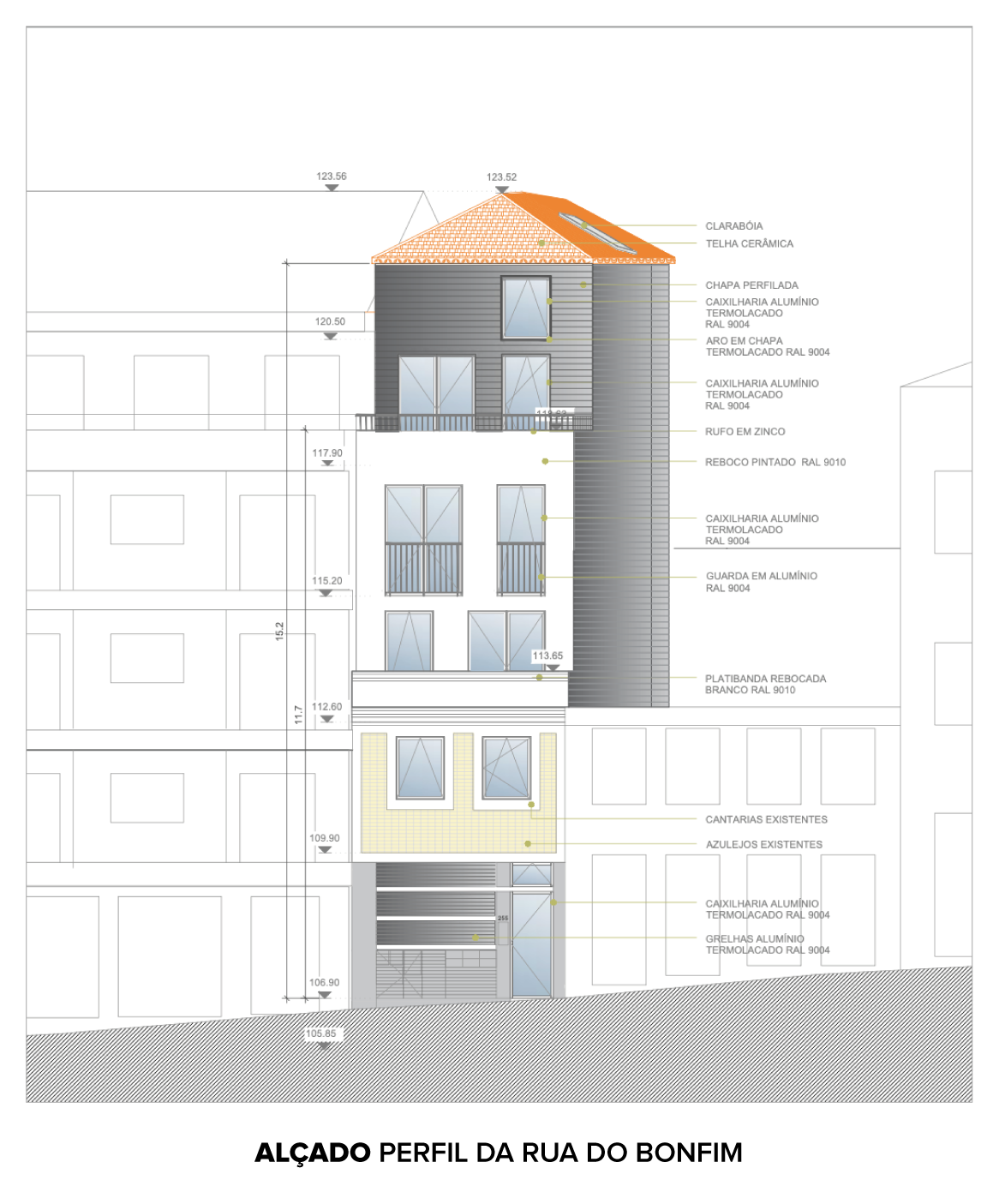
Na rua do Bonfim, no centro do Porto, a Gaivota está a desenvolver um novo projecto.

Será ali edificado um novo prédio composto por 6 apartamentos T1 duplex, resultado da intervenção sobre um edifício com aproximadamente 60 anos em estado decadente e de pré-ruína.

Pela sua localização, os apartamento foram pensados para o mercado do arrendamento, turístico ou permanente, tendo no entanto primado pela modernidade dentro do ambiente histórico da zona, sempre com um grande foco na habitabilidade e pelos pequenos pormenores de funcionalidade dos espaços.

O projecto está neste momento em fase de aprovação camarária, com o inicio da construção apontada para meados de 2021 e a sua conclusão para primeiro trimestre de 2022.

A fase de pré-vendas iniciar-se-à pouco depois do inicio da construção, sendo nesta primeira fase possível adquirir as unidades com condições especiais de venda, transformando o que já seria um bom negócio num excelente investimento.

Fale connosco. Teremos todo o gosto em dar-lhe a conhecer o projecto em pormenor.

out 22
318%

PROJECTO

Ficha Técnica: Arquitetura por Mário Vilanova e Solange Valente | Topografia por Miguel Gomes | Especialidades por Pina & Machado, Lda | Construção por Sá Machado & Filhos, Lda.

GALERIA

ENTRE EM CONTACTO

campos obrigatórios*


© 2021 · Gaivota